Publicité
Publicité

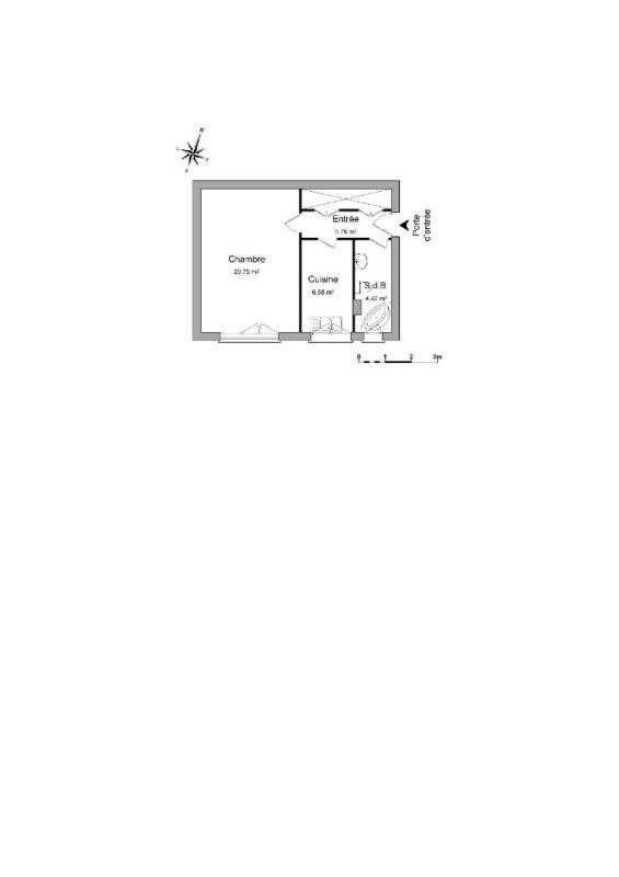
APPARTEMENT 1 pièce(s) - 37m²

** RUE LOTHAIRE II, A. France Sud Bertin Nord, Nancy

  • Appartement
  • |
  • 37 m²
  • |
  • 1 Pièce
  • |
  • il y a 2 heures

Dernière mise à jour : il y a 2 heures info

Icône des vues quotidiennes0 vues les dernières 24 heures

Poser une question

A propos de ce bien

Inscrivez-vous pour voir toutes les photos et détails de cette propriété en location
S'inscrire

Bienvenue dans votre nouvelle retraite urbaine à 18 RUE LOTHAIRE II, A. France Sud Bertin Nord, Nancy ! Cet appartement moderne de 1 chambres offre un espace de vie élégant et confortable. Le concept ouvert est parfait pour recevoir et la cuisine élégante est équipée d'appareils haut de gamme. Grâce à son emplacement privilégié, vous serez à quelques pas des meilleurs restaurants, boutiques et lieux de divertissement de la ville. À un prix abordable de € 330, cet appartement est une fantastique opportunité de profiter de la vie en ville à son meilleur. Ne manquez pas cette occasion – planifiez une visite dès aujourd'hui !


Publicité
Caractéristiques du bien
Type de bien
Surface
37 m²
Pièces
1
Étage
2
Adapté aux personnes âgées
Non
Classe énergie Icône des questions
F

A propos de la location
Loyer mensuel
€ 330
Charges
€ 68
Dépôt de garantie
-
Honoraires
€ 330
Durée de location
-
Date de disponibilité
25 mai

Avez-vous remarqué une erreur dans l'annonce ?
Aidez-nous à améliorer Rentumo - signalez toute information incorrecte et nous nous en occuperons.
Signaler un problème

FAQ

Obtenez un accès illimité à tous les contacts de toutes les annonces sur Rentumo avec un abonnement premium. Cliquez ici pour vous inscrire à Rentumo Premium.

Vous recherchez sur 1 à 5 sites de location. Nous en recherchons plus de 350 pour vous. Nous trouvons quotidiennement plus de 200 nouvelles locations sur tous les sites Web. Vous recevez des notifications toutes les heures avec de nouveaux matchs. Vous économisez plus d'une heure de recherche chaque jour en utilisant Rentumo.

Inscrivez-vous à un SearchAgent et recevez des notifications, vous assurant d'être le premier informé lorsque de nouvelles locations sont disponibles sur le marché. Cliquez ici pour vous inscrire GRATUITEMENT.

Cette liste est extraite d'un autre site Web. Nous parcourons les sites Web 700 sur France pour rassembler toutes les annonces dans une recherche pratique pour vous. En d’autres termes, nous effectuons tout le travail de recherche pour vous.

Insistez toujours pour rencontrer les propriétaires en personne avant d’effectuer un dépôt. Si un propriétaire demande une caution avant que vous ayez vu la propriété, considérez cela comme un signal d'alarme. Assurez-vous de réserver une visite, de vous rencontrer en personne et d'obtenir un contrat signé avant de procéder à tout paiement.

Si l'annonce est déjà louée ou a la mauvaise adresse ou encore semble incorrecte - veuillez le signaler ici.

Nous scannons quotidiennement les sites de location 743, trouvons des centaines de nouvelles annonces chaque jour, pour vous envoyer des alertes rapides.

S'il y a un problème, nous l'examinerons rapidement - et vous pourriez être éligible à un remboursement.

Signaler une erreur sur l'annonce ici.

Publicité
Localisation Tous les appartements à louer dans Nancy
235 propriétés similaires
Voir les 235 résultats similaires

En quête d'un nouveau chez-vous ?

  • Créer un agent de recherche
  • +3 400 nouveaux logements par jour
  • 7 personnes sur 10 qui ont trouvé un nouveau logement se sont abonnées à notre recherche d'agent
  • Vos critères de recherche

Nancy
€ 400/mois, min. 1 pièce

Loyer mensuel
330
Contacter
Logo Close
Icône d'accueil