Essayez d’inclure autant de détails que possible.
Êtes-vous intéressé par cette propriété? Contactez plutôt le propriétaire ici.
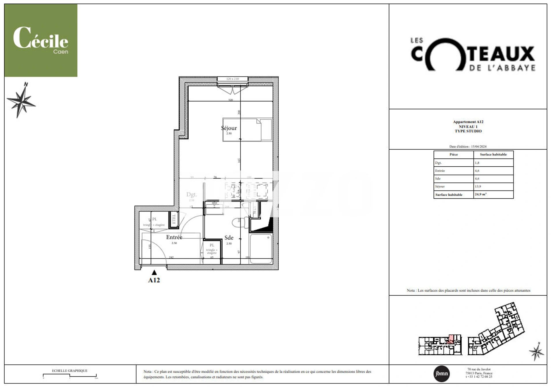
1 Pièce
-
Appartement
25 m²
Copié