Essayez d’inclure autant de détails que possible.
Êtes-vous intéressé par cette propriété? Contactez plutôt le propriétaire ici.
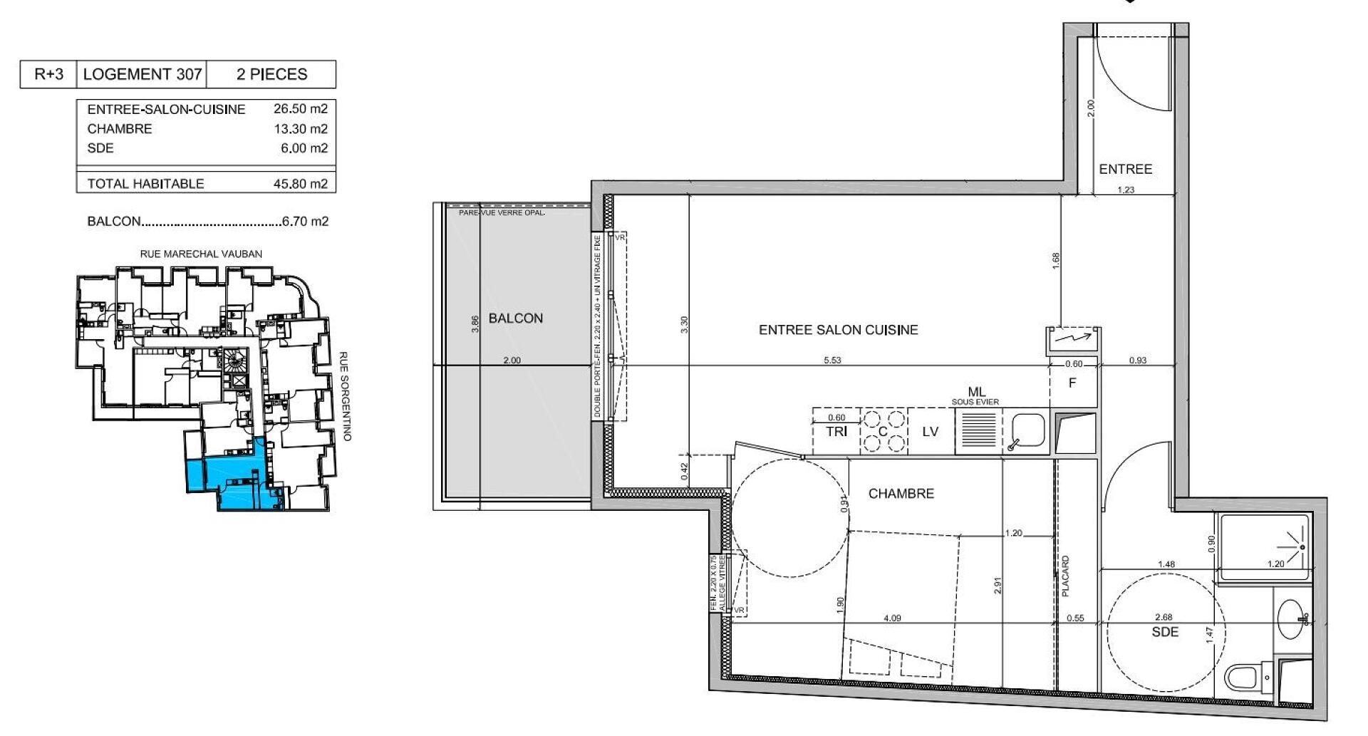
2 Pièces
-
Appartement
45 m²
Copié