1 rental home found
Gières
GIERES situé dans une résidence étudiante Les Studélites ...
Grenoble
Loyer : 372 € par mois charges comprises charges compris...
Saint Martin Le Vinoux
GRENOBLE - Quartier Europole/Berriat - 59 Rue du Vercors ...
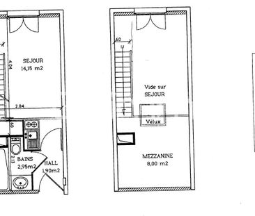
GRENOBLE - 33 Rue de Washington Venez découvrir ce T4 de ...
Saint Martin D'hères
À LOUER, LOGEMENT EN COURS DE CONSTRUCTION [Loi PINEL : S...
Découvrez à la location cet appartement de type T2 de 57....
À LOUER : Appartement T2 à Grenoble, situé dans un quarti...
A LOUER, 5 rue anthoard Bel appartement de type T1 à Gre...
Loyer : 670 € par mois charges comprises charges compris...
Loyer : 333 € par mois charges comprises charges compris...
La Tronche
8 Bis CHEMIN DUHAMEL A LA TRONCHE Résidence agréable de ...
Loyer : 550 € par mois charges comprises charges compris...
Appartement À Louer 49.43m² - EUROPOLE. À LOUER dans votr...